Passa ai contenuti principali
Home
Chi siamo
Progetti
Contatto
Home
Chi siamo
Progetti
Contatto
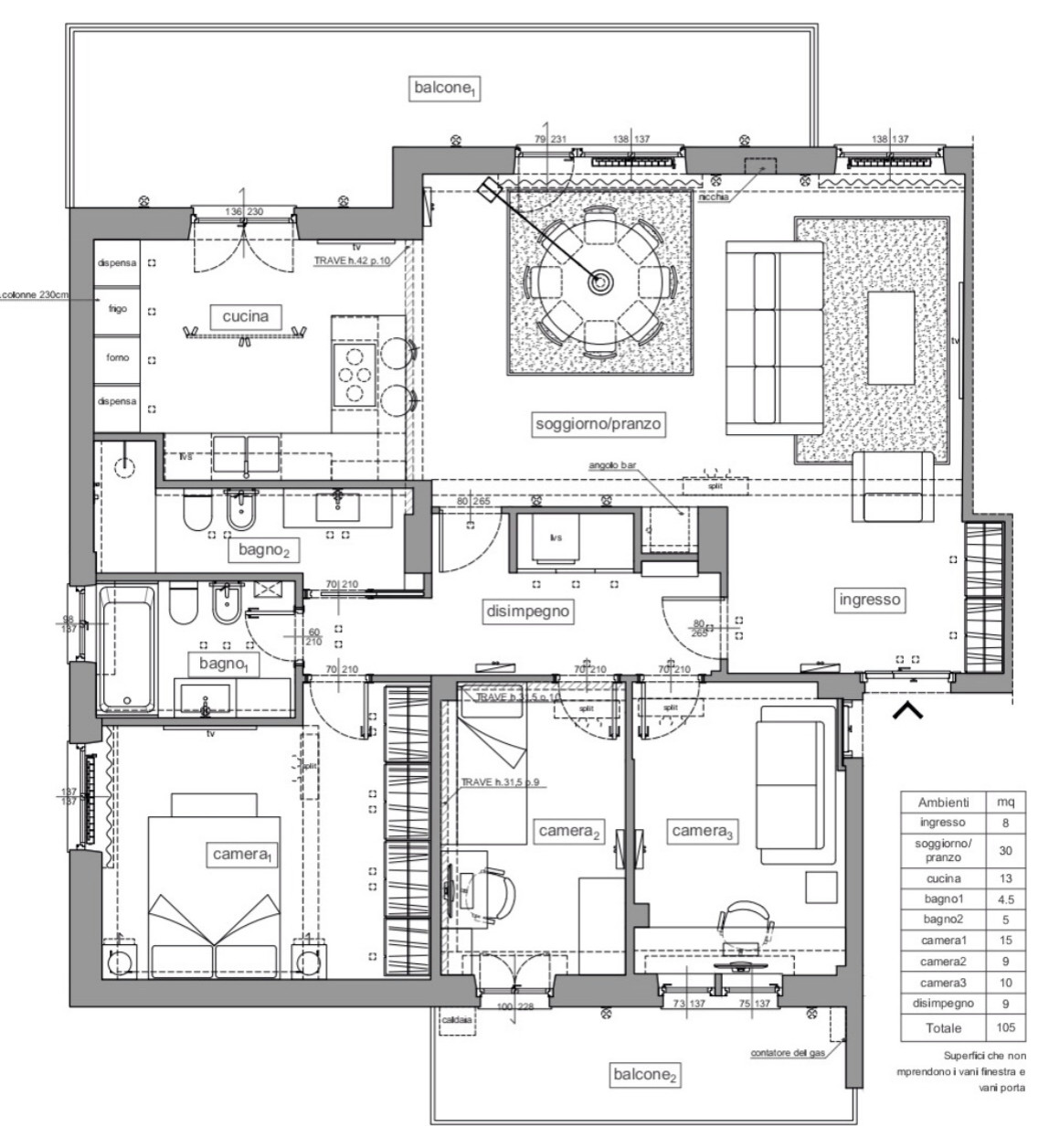
Colore, parquet e luce in un appartamento di 110 mq in zona Balduina