Passa ai contenuti principali
Home
Chi siamo
Progetti
Contatto
Home
Chi siamo
Progetti
Contatto
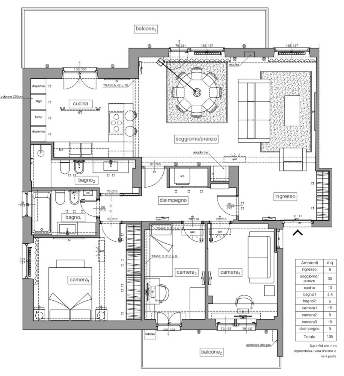
Luminoso appartamento di 105 mq in zona Balduina
Ristrutturazione completa di tutto l’appartamento